当前位置: 首页 > 新闻动态 > 学院要闻 > 正文

建筑工程学院2024年10月“1+X”建筑工程识图职业技能等级考核工作顺利开展

【来源:建筑工程学院新闻中心 | 发布日期:2024-10-28 】

获取1+X技能等级证书是落实岗课赛证相融合教学模式的重要组成部分,在建筑工程学院领导班子的支持下、建筑构造识图教研室的认真工作下以及学院新闻中心的积极宣传下,共计170多名来自不同专业的学生参加本次职业技能考核。

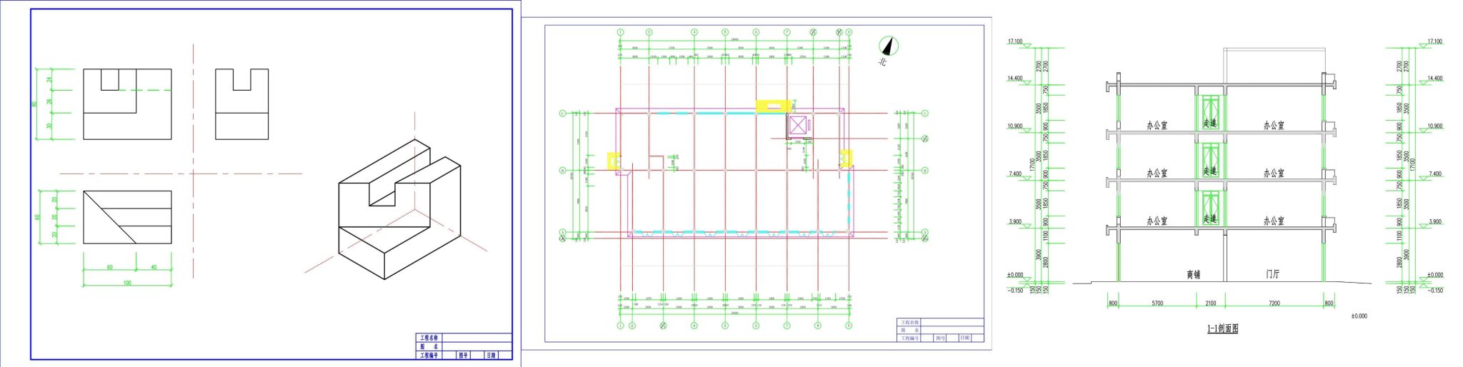
建筑工程识图职业技能等级考核内容涵盖了识图和绘图两个方面,目的在于全面考核学生对建筑制图以及建筑构造与识图课程中的重点知识掌握情况以及CAD软件制图能力。考评过程中,学生们需要运用他们所学的理论知识和实践技能,完成图纸识读和图形绘制的相关的任务。

经过三小时的基本知识测试和上机技能考核测试,最终有94名学生通过考核。其中74人通过初级考核,19人通过中级考核。

本年度“1+X”建筑工程识图职业技能等级考核工作的顺利展开,展现了我院在教学模式创新和实践能力培养方面的决心和能力。我院将通过积极落实岗课赛证相融合的教学模式,不断提升学生的专业技能能力,为社会培养出更多高素质的建筑行业专业人才。

(上图为优秀学生成果)